Каталог
Все города
Окна, двери, лестницы
Назад
Не выбрано

Строительство дома по проекту 55-14, 252 кв.м

3 месяца назад 16 (1 сегодня) №7984870466

Местоположение

Северо-Западный федеральный округ, Калининградская область, городской округ Калининград, Калининград, Центральная площадь

Описание

Технические характеристики:

Кубатура - 885 м3
Общая площадь застройки - 332 м2
Общая площадь - 252,18 м2
Площадь нетто - 162,45 м2 + гараж + чердак
Полезная площадь - 156,90 м2
Площадь крыши - 273,58 м2
Угол наклона крыши - 45 и 35 °
Высота строения - 8,94 м (9,14 м с цоколем)
Размер дома - 13,44 x 15,55 м
Минимальный размер участка - 21,44 x 23,55 м
Высота помещений - 3,0 м и 2,7 м

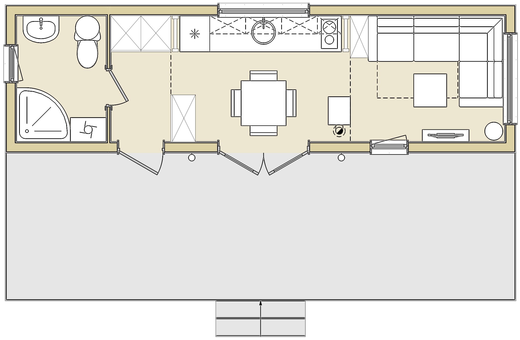
Дом с мансардой 55-14, спроектирован, как удобное место для проживания для семьи из 4-6 человек. Современная архитектура дома с привлекательным силуэтом. Здесь идет рука об руку с функциональным, уютным интерьером. Дом украшен обшивкой стен из дерева и плит, разделение фасада на горизонтальные полосы, которое вводит порядок, дополнительно подчеркивает правильные пропорции. Обширное остекление и открытая внутренняя часть дома на сад подчеркивают современный дизайн. Фронт дома украшает вход с широкими дверями с окном и кухонное окно. Со стороны сада есть прекрасное застекление гостиной и столовой, а также удобная, частично крытая терраса. Интерьер дома начинается с открытого пространства прихожей, гостиной и столовой. Рядом со столовой хорошая кухня с кладовой. С другой стороны, на первом этаже есть дополнительная комната (кабинет или гостевая спальня), ванная комната, лестница, и переход в хозяйственную часть, а там в свою очередь: кладовая, котельная и гараж на две машины. На мансардном этаже спроектированы три просторные спальни с гардеробными и встроенными шкафами, две ванные комнаты и прачечная. Спальня родителей с гардеробами и ванной комнатой. С площадки лестницы есть вход на чердак над гаражом, который может быть использован в качестве кладовой или дополнительной жилой комнаты. Простая форма дома, которую довольно легко построить, и энергосберегающие решения из теплоизоляционных материалов в результате соединяются с экономическим потенциалом - как в строительстве, так и в последующей эксплуатации. Прежде всего, это очаровательный, современный и комфортабельный дом для его будущих жителей.

Преимущества работы с нами:
- 10 лет успешной работы
- Доступные цены
- Качественные материалы
- Опытные работники
- Богатая комплектация
- Быстрая работа

Строительство домов в Калининграде под ключ от компании Baumeister

Не зря говорят: Мой дом, моя крепость! Строительство дома должно быть качественным и надежным. Поэтому обращаться нужно только к профессионалам, способным в сжатые сроки построить дом и гарантирующих качество выполненных услуг.
За плечами нашей компании десятки построенных домов, сотни квадратных метров! У нас вы можете заказать строительство дома под ключ, как по нашим эскизам, так и по вашим. Специалисты компании имеют большой опыт работы и не побоимся этого слова – талант, поэтому они смело берутся за проект любой сложности. Нами уже реализовано свыше 400 уникальных проектов. Мастера предложат вам выгодные варианты строительства, при этом учитывая все пожелания клиента.

Все подробности по телефону.

Характеристики

Вид услуг: Готовые проекты
Отзывы 0

Отзывов пока нет 🥴

Цена не указана
Baumeister
Объявления из той же категории
Домой
Избранное
Чат
Профиль